TERRA TOWNHOMES
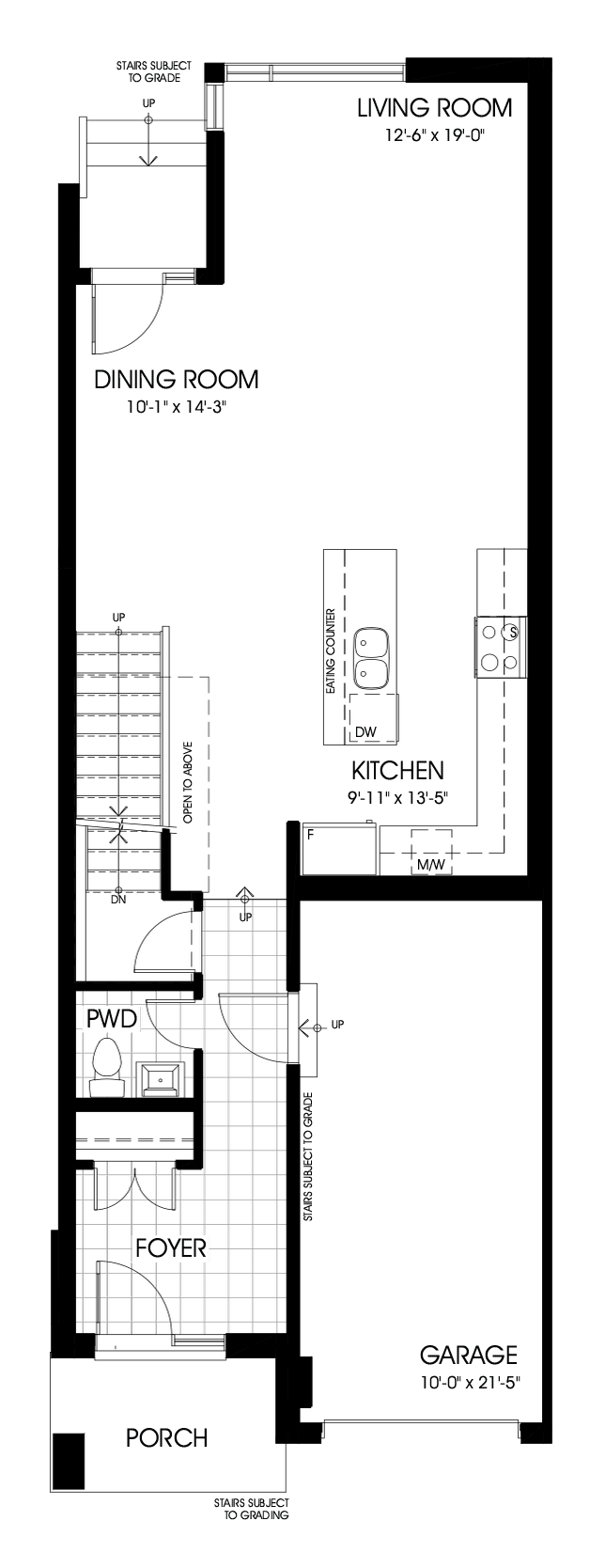
GROUND FLOOR
SECOND FLOOR
3 BEDROOM
3 BEDROOM
SECOND FLOOR
4 BEDROOM
4 BEDROOM
BASEMENT
Areas and dimensions are approximate. Layout may be reverse of the unit purchased. Prices, figures, illustrations, sizes, features and finishes are subject to change without notice. E. & O.E.